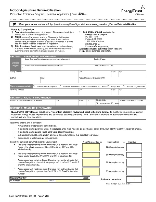
Energy Trust Of Oregon
920 SW 6th Ave #900Portland OR 97204
Company Description:As an independent nonprofit, Energy Trust works with customers, utilities, community based organizations and local governments to advance clean energy solutions. By pairing our expertise and resources with local knowledge, we help communities address today’s challenges and prepare for the future. Through incentives and services, we help reduce energy costs in homes, businesses and organizations across Oregon and SW Washington.
Networking Profile
What we offer:Energy Trust of Oregon helps customers and communities lower energy costs while delivering environmental and community benefits. Through cash incentives, technical guidance, and project support, we reduce the cost of energy efficiency and renewable energy investments, helping individuals, businesses, and organizations save money while contributing to a cleaner energy future.
What type of partners are we looking for?Energy Trust of Oregon incentives are available to Oregon residential and business customers served by five specific utilities: Portland General Electric (PGE), Pacific Power, NW Natural, Cascade Natural Gas, and Avista. Customers must receive electric or natural gas service from these providers to qualify for cash incentives on energy-efficiency upgrades.
Services we are offering
Documents & Marketing Material: - Financial Services
- Education and Training



